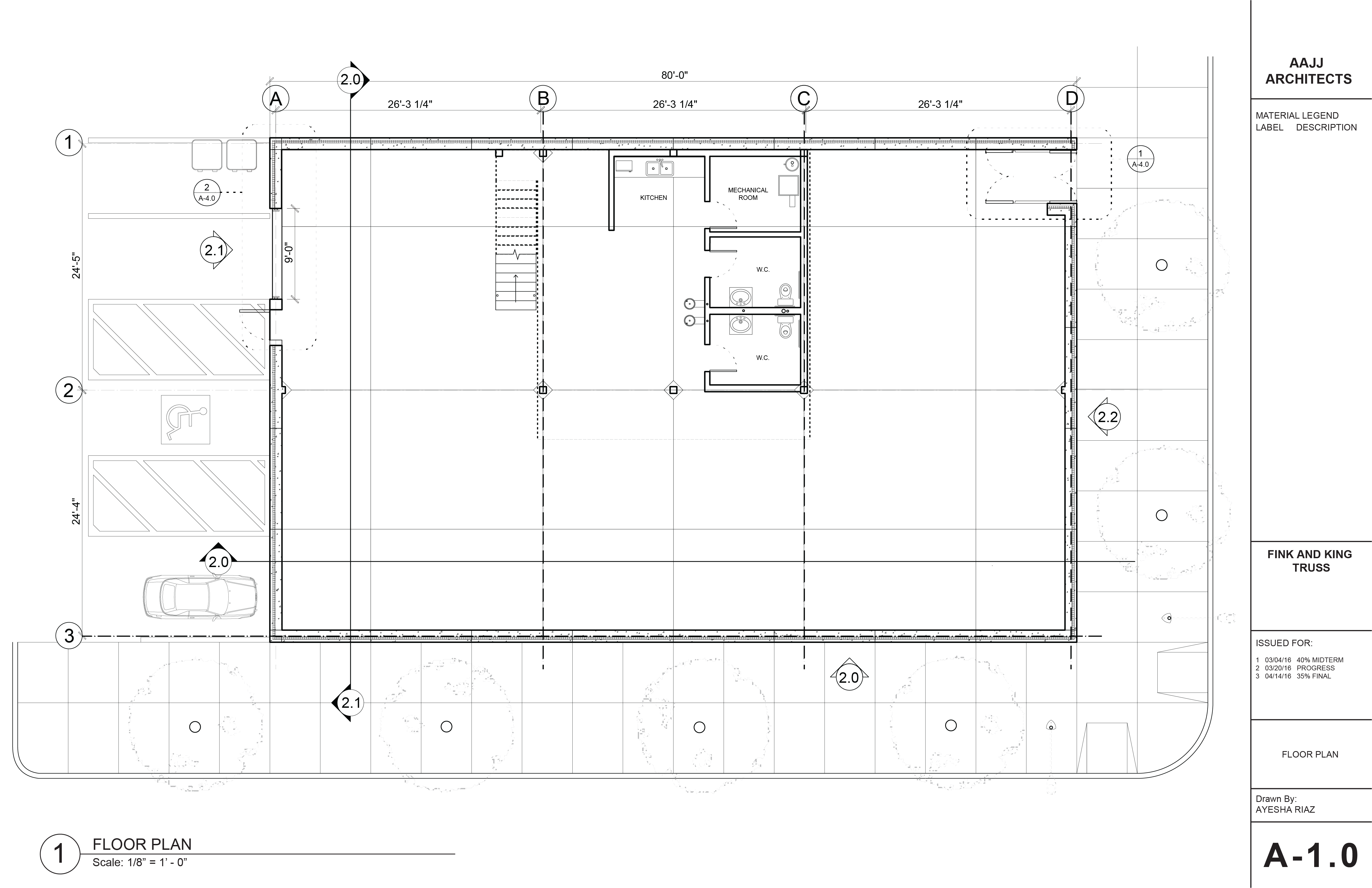
warehouse

Construction documents for multi-use warehouse with steel king trusses and mezzanine on typical Chicago lot.
in collaboration with structures group:
Andrea Hunt, Jesus Cruz Jr., Jorge L. Mayorga
![]()
![]()
in collaboration with structures group:
Andrea Hunt, Jesus Cruz Jr., Jorge L. Mayorga


















